Welcome to Howard Baker Design. I’m a qualified Architectural Designer based in Bristol with 8 years experience designing bespoke homes and spaces for a variety of clients. This has included collaboration with Architects in Bristol, Bath, Brighton, London and Sydney, while also undertaking an array of private residential work from concept to completion.
Whether you are looking to collaborate, renovate, extend, convert or even build entirely from scratch, I can help you. I realise every client is different and each project offers unique challenges and requirements. Therefore I provide a flexible design service that suits you. Working together with your brief I am committed to ensure we exceed your original project vision and expectations.
My intention is to provide creative, insightful and appropriate solutions so you can unlock the full potential of your property and site.
From the outset I work with you to gain a clear understanding of your individual needs, concerns and aspirations for the project.
As ideas evolve from the initial brief, my design approach seeks to respond to the surrounding context through visual links, local materials and climate. I enjoy exploring clever and cost-effective solutions to the design, while encouraging sustainable strategies where practical. Finally, bringing together all the services you need along the way to begin building.
My aim is for you to end up with a beautiful, healthy and happy home that is fit for the 21st century and enriches the way that you live, work and play.
As part of the basic design package you will receive a detailed report outlining the entire process and stages involved within your individual project. This includes guidance on planning, estimated time scales, professionals involved and expected fees
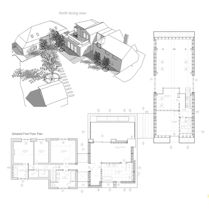
I offer a tailored design approach. This provides you with the option to include 3D rendered images to help you visualise your project and inform any decisions. These visuals can be modified to a style to suit your requirements and budget
It’s important to know you can afford the proposed scheme. Working with a Quantity Surveyor I can provide you with a breakdown of the estimated build costs. This removes uncertainty, ensuring the project is within budget before you build
Following building regulations, I can further explore the technical design of any bespoke elements from interior joinery to unique architectural elements, collaborating with industry professionals so your project has the added wow factor you desire
I offer site visits during the construction to provide any additional design assistance or guidance that may be required. This gives you the added reassurance that the build progress and quality is meeting your standards and expectations
0117 287 2699
info@howardbaker.co.uk
Unit 4.6 Paintworks Bristol BS4 3EH
Write me a Message